South Road, Hillside - Modern & Character Filled Flat

Price £215,000 New Instruction
  • Western Mansions - Hillside
  • Vendors Have Found Their Onward Move
  • Lower Ground Flat - Own Private Entrance
  • Two Double Bedrooms
  • Period Features Throughout
  • Modern Fitted Kitchen & Modern Bathroom Suite
  • Private Courtyard Garden
  • Allocated Parking For 1 Car
  • Ample Storage - All Light & Spacious Rooms
  • Great Access To; Town, Sea Front, Commuter Links & Prince Consort Gardens

*Vendors Have Found Their Onward Move Complete Chain Above* Saxons are delighted to present this beautifully presented, character filled two double bedroom lower ground floor apartment, forming part of an elegant Victorian Villa. This light, spacious home is ideally located in the highly sought-after Hillside area of Weston-super-Mare, offering convenient access to commuter links, Prince Consort Gardens, the sea front, town centre, and a wide range of local amenities.

This charming property blends period character with modern comfort and benefits from:
• Private entrance
• Off-street parking for one vehicle
• Low maintenance private courtyard garden by the entrance
• Gas central heating - new Valiant boiler in 2024, with 10 year warranty
• Stylish modern kitchen
• Feature high ceilings and generous natural light throughout
• Contemporary bathroom suite with separate W.C.
• Spacious rooms full of period charm

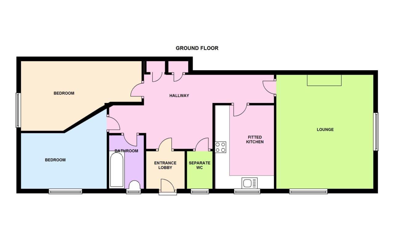
Accommodation briefly comprises: a welcoming hallway with storage, two double bedrooms, a modern fitted kitchen, a contemporary bathroom with separate W.C., and a larger than- average lounge perfect for entertaining or relaxing.
Outside, the property enjoys its own private, low maintenance courtyard garden, independent access, and off-street parking for one car.

ENTRANCE
Via steps down from Paragon Road,Partially obscure glazed front door opening to;

ENTRANCE VESTIBULE
Further obscure part glazed door opening to

HALLWAY - 15'11" (4.85m) x 11'10" (3.61m)
With doors leading to all rooms. Oak flooring. Two storage cupboards, Victorian style radiator, wiring for three wall lights. Doors to all rooms.

LOUNGE - 14'0" (4.27m) x 17'10" (5.44m)
Dual aspect sash windows with working shutters. Oak flooring. 2 Victorian style radiators. Wiring for 4 wall lights. T.V point. Telephone point. Feature fireplace with surround and marble hearth. Ornate coved ceiling with central ceiling rose.

KITCHEN - 12'9" (3.89m) x 8'1" (2.46m)
A side aspect sash windows with working shutters. Fitted with a range of eye and base level units with wood effect roll edged work top surfaces over. Inset single drainer stainless steel circular sink with mixer tap. Tiled surrounds. Fitted wine Rack. Gas four ring hob with extractor hood over. Stainless steel oven and microwave. Integral appliances includes fridge/ freezer, washer dryer machine and dishwasher, wall mounted Valiant combination boiler (installed 2024, 10 year warranty). Victorian style radiator,T.V point. Ceramic tiled flooring. Smooth, coved ceiling with inset spot lighting.

BEDROOM ONE - 17'9" (5.41m) x 9'7" (2.92m) Max
Side aspect single glazed sash window. Victorian style radiator. Built in shallow cupboard, television point. Coved ceiling.

BEDROOM TWO - 7'8" (2.34m) x 12'4" (3.76m)
Side aspect single glazed sash window fitted with working shutters. Victorian style radiator. Television point. Coved ceiling.

SEPARATE WC - 5'11" (1.8m) x 3'9" (1.14m)
Side aspect obscured single glazed window. Ceramic tiled flooring.Comprising of a low level WC and vanity wash hand basin with mixer taps. and tiled surround,

BATHROOM - 4'9" (1.45m) x 7'9" (2.36m)
Side aspect obscured single glazed window. Comprising of panelled bath with central mixer tap and shower over and shower screen. Vanity wash hand basin with mixer tap. Stainless steel heated towel rail. Ceramic tiled flooring. Inset spot lights.

OUTSIDE
2 useful outside storage cupboards. Predominately laid to paved patio. Outside lighting and tap. Feature brick arch leading to rear of the building with paved path. Additional area of garden laid to chipping stones.

PARKING
There is an allocated parking space which can be accessed from Atlantic Road.

AGENTS NOTE
Lease remaining of 999 years. Maintenance fees £1,200 per annum. Managed by Saturley Garner.

DIRECTIONS
From Saxons Weston office continue along the Boulevard towards the Sea Front. At the Sea Front turn right and continue along Knightstone Road and turn right into Upper Church Road, at the junction head straight across into Highbury Road, at the top of the Road turn right into South Road where the property will be found.

MONEY LAUNDERING REGULATIONS 2012
Intending purchasers will be asked to produce identification and proof of financial status when an offer is received. We would ask for your cooperation in order that there will be no delay in agreeing the sale.

AGENTS DISCLOSURE
Saxons have not tested any apparatus, equipment, fixtures and fittings or services and so cannot verify that they are in working order or fit for the purpose. A Buyer is advised to obtain verification from their Solicitor or Surveyor. References to the Tenure of a Property are based on information supplied by the Seller. Saxons have not had sight of the title documents. A Buyer is advised to obtain verification from their Solicitor.
Items shown in photographs are NOT included unless specifically mentioned within the sales particulars. They may however be available by separate negotiation.
Buyers must check the availability of any property and make an appointment to view before embarking on any journey to see a property.



Council Tax
North Somerset Council, Band B

Service Charge
£1,000.00 Yearly

Notice
Please note we have not tested any apparatus, fixtures, fittings, or services. Interested parties must undertake their own investigation into the working order of these items. All measurements are approximate and photographs provided for guidance only.


/// mirror.dock.keeps is the what3words address for the best entrance. what3words has given every 3 metre square in the world a unique combination of 3 random words.

Floor Plan
EER Chart

The Energy-Efficiency Rating is a measure of a home's overall efficiency. The higher the rating, the more energy-efficient the home is, and the lower the fuel bills are likely to be.

Utility Supply Type
Electric Mains Supply
Gas None
Water Mains Supply
Sewerage None
Broadband None
Telephone None

Other Items Description
Heating Gas Central Heating
Garden/Outside Space Yes
Parking Yes
Garage No

Broadband Coverage Highest Available Download Speed Highest Available Upload Speed
Standard 19 Mbps 1 Mbps
Superfast 71 Mbps 18 Mbps
Ultrafast 1800 Mbps 220 Mbps

Mobile Coverage Indoor Voice Indoor Data Outdoor Voice Outdoor Data
EE Likely Likely Enhanced Enhanced
Three Likely Likely Enhanced Enhanced
O2 Enhanced Likely Enhanced Enhanced
Vodafone Likely Likely Enhanced Enhanced

Broadband and Mobile coverage information supplied by Ofcom.


marker icon